• <tt id="sssss"></tt>
  • <tt id="sssss"></tt>
  • <tt id="sssss"><rt id="sssss"></rt></tt>
  • <li id="sssss"></li>
    <tt id="sssss"><table id="sssss"></table></tt>
  • <tt id="sssss"></tt>
  • <tt id="sssss"><table id="sssss"></table></tt>
    <li id="sssss"><table id="sssss"></table></li>
  • 產品名稱: KWNP系列變壓器中性點間隙保護裝置
    產品質量:
    詳細介紹

    一、概述

    本產品廣泛應用于電力、冶金、石化、礦山、建筑、環保等領域。用于供電系統中性點不接地110kV、220kV變壓器中性點絕緣保護,由于雷擊、單相接地短路故障等造成中性點過電壓,對中性點的絕緣造成很大威脅,所以必須對其配備保護裝置以防止事故發生。

    二、技術性能及特點

    1.本系列產品集隔離開關、氧化鋅避雷器、放電間隙和電流互感器等電氣設備為一體,具有功能全、可靠性高、便于安裝調試等特點。

    2.本系列產品的放電間隙有棒形和球形兩種形式。

    3.隔離開關的操作機構可按工程要求選用手動或電動機構。

    4.間隙放電電壓穩定,間隙距離易于調整。

    5.間隙底座安裝吊環,整件運輸吊裝,現場安裝快捷方便。

    三、型號說明


    四、接線原理示意圖

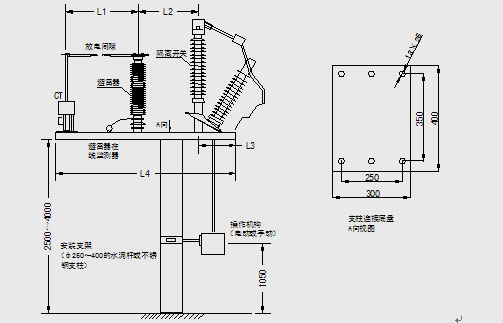
    五、裝置外形及安裝示意圖(單位:mm)

    注意:此示意圖僅作為KWNP系列變壓器中性點間隙保護裝置的安裝參考,尺寸以實際產品尺寸為準。

    六、注意事項

    1.變壓器中性點引線接入時按照安裝示意圖所示。

    2.現場結構柱由用戶準備(如用戶需要本公司可提供),可采用水泥桿或金屬鋼管,離地1050mm處預留鋼箍?,F場結構柱的高度由工程自行確定,一般應在2500mm~4000mm之間。

    3.設備安裝時應可靠接地。

    4.產品的外形及尺寸以實際供貨為準。

    七、訂貨須知

    1.變壓器的電壓等級及絕緣水平。

    2.間隙保護電流互感器的精度、變比和容量。

    3.變壓器中性點零序保護用電流互感器的精度、變比和容量(注:本互感器一般裝設在變壓器中性點的出線套管上,不包括在本裝置內,如有需要請在訂貨時說明)。

    1.隔離開關的額定電流及操動機構的操作方式。

    2.氧化鋅避雷器的額定電壓及雷電殘壓。

    3.產品的安裝方式是用戶預澆水泥桿支柱還是隨產品配套供應地面以上的全套安裝支架及附件。


    亚洲av永久无码精品网站